校园景观改造—每个场景都是教育的一部分
凤凰学校空间改造,深圳 / 深圳市同济人建筑设计有限公司

校园西侧有多个住宅小区,西侧入口是日常学生主要的上下学路径,但因场地限制,入口与校内广场的高差达到9米以上。局促的用地既无法解决车行交通,也给上下学的孩子们设置了一道艰难的攀爬屏障。
▼西门改造前的大台阶

设计思路是营造一条能够削弱陡峭感、消除孩子们对高度抗拒的路径,同时激发他们步入其中并探索的欲望。


原本笔直又陡峭的高楼梯即不安全也会产生一种艰难的攀爬感。将原先限定边界的绿化高挡墙拆除,释放局促空间。将原先笔直的两条直跑梯段进行拆解,通过中间绿植的引入形成错动的上下路径,既丰富了交通空间也增加的孩子们行走的安全系数。

空间最大的亮点是植入一个连续起伏的波浪形钢楼梯,钢楼梯和改造后的景观台阶巧妙搭接,形成丰富的上下路径,让孩子们有了多个有趣的选择。


深圳市太子湾学校共建花园 / Metrostudio 迈丘设计

项目场地位于太子湾学校小学部的教学楼西侧与学校围墙之间,廊架把狭长的空间分成两个细小地块,经过长年累月的生长,植物密闭。
▽改造前花园现状,无序密植的灌木丛,光照条件差

改善生态环境,让花园变得更有趣,是设计的思考。最终决定在有限的空间里,保留乡土树种,去除外侵物种,引入丰富的花境品种,结合可食蔬果种植,通过转运箱搭建出丰富的立体绿化空间,让这片荒废的小空间成为一个共同搭建、培育、分享、可持续的“可食花园”。
▽自然引导营示意图

▽生境设计策略


▽花园建成实景


▽花园北侧绿地改造前后对比

▽花园南侧绿地改造前后对比

▽“时光机器人”,由水果篮子搭建的标识构筑


绍兴上虞龙山学校立面改造设计 / 木量建筑工作室

荒置过一段时间的职业中等学校,外部或白色或马赛克的瓷砖,内部为绿色涂料墙裙,建筑略显冗长的走廊,简单的平面,都指向那个年代坚固实用美观的建筑理念。此次改造设计,甲方希望打造一个明朗,适合现代青少年学习生活的校园。我们试着用鲜明的色彩,大小不一的方框去勾勒立面,让有些单调的走廊鲜活起来。让孩子们能透过一个个框景去发现周边不一样的景色。
▼ 改造前建筑外观

▼ 改造后的校园


▼教学楼采用方框立面



▼立面图



1971研学营地旧学校改造,山东 / DK大可设计

▼改造前的老建筑

对原入口拆除重新设计,打造一个独特景观入口空间,特有红砖砌筑 “1971研学营地”几个字代替了普通的金属字体张贴,让其与整个空间形成一个完整体。

▼光井

将保留的建筑空间重新组合,形成五个独立的院落空间和一个休闲趣味景观带,继续沿用红砖作为建造的主材料来整合空间氛围。在尊重建筑现状的基础上运用圆形元素配置每个庭院入口的专属空间,增加其趣味性和体验性。





▼红砖区总平面图

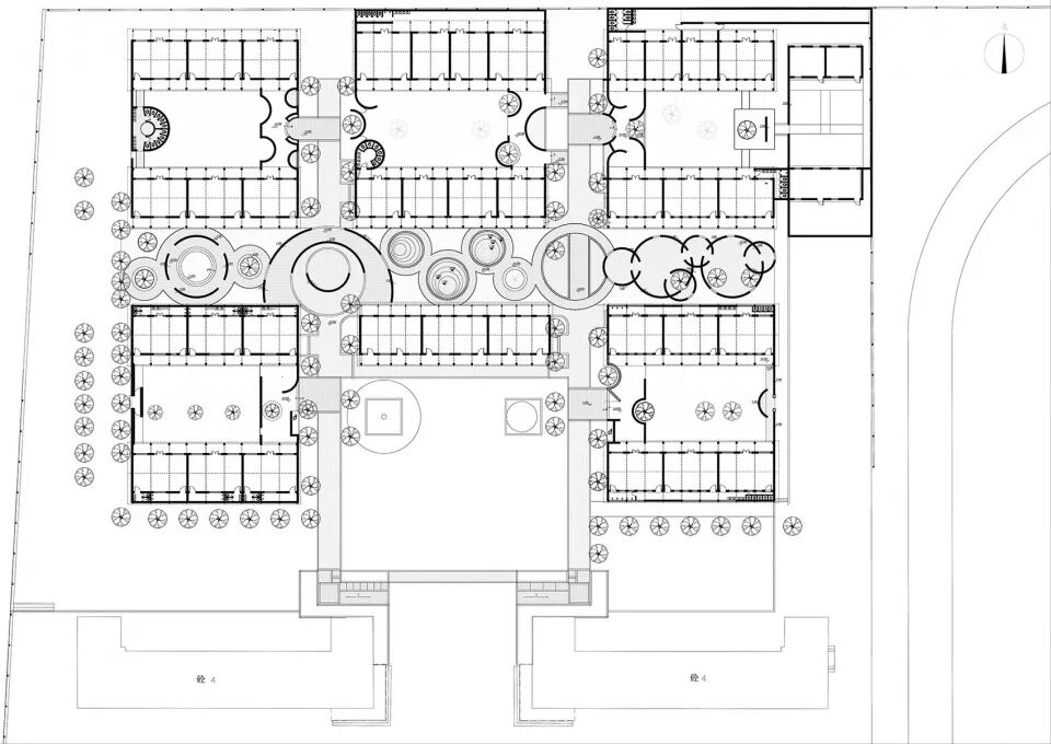
北大附中本校及朝阳未来学校景观改造,北京 / Crossboundaries

此次两校改造过程中,我们确定的设计原则是,围绕学生的真实需求和体验,将传统高度分割而封闭的“刻板空间”,化解成更加开放而连续的“自由空间”。
▼改造示意图

▼原先被铁笼包围的球场

▼返校校友途经昔日老球场,今天的下沉式活动场


▼自由布局的坐具

▼平面图

- 上一篇:超有感觉的创意造型设计
- 下一篇:没有了

